Description
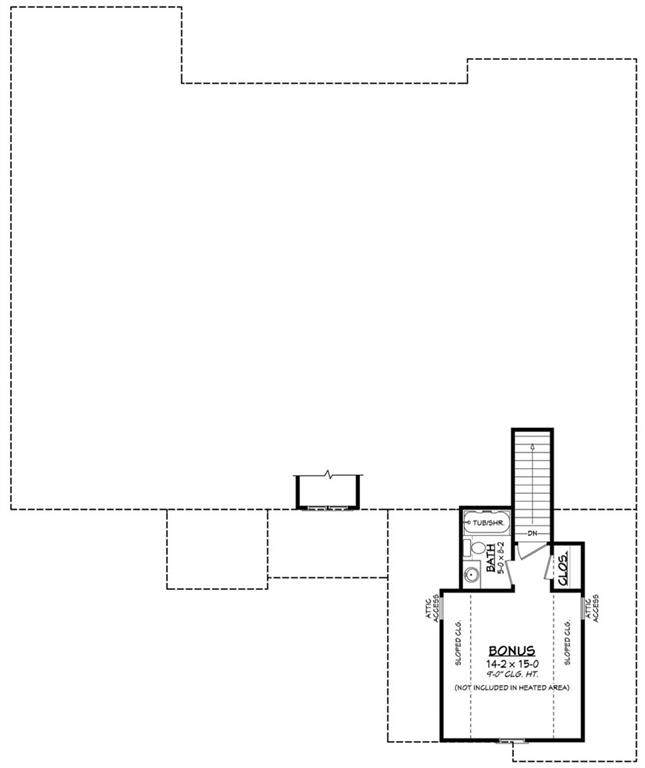
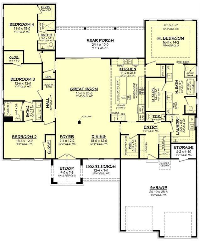
Welcome to the rare opportunity to build a brand-new home on an almost 2-acre, wooded, level homesite in one of the area’s most highly sought-after locations. This thoughtfully designed residence offers 5 bedrooms and 4 baths with a spacious, open-concept floor plan created for both everyday living and effortless entertaining. The heart of the home features a gourmet kitchen complete with stainless steel appliances, generous workspace, and seamless flow into the main living areas. Generously sized secondary bedrooms provide comfort and flexibility for family, guests, or home offices. 10' ceilings in the Family Room, Dining Area, Foyer and Pantry. The private primary suite is a true retreat, showcasing a luxurious soaking tub and a separate walk-in shower for spa-like comfort. Step outside to the covered rear patio, ideal for relaxing, entertaining, or enjoying the peaceful wooded setting. A side-entry garage enhances curb appeal while maintaining the home’s clean, elegant lines. Surrounded by natural beauty and offering exceptional privacy, this new-construction home blends modern design, functional living, and a serene setting—an exceptional opportunity to own a custom-style home on a premium homesite.
-
5BEDS
-
1.69ACRES
-
4BATHS
-
01/2 BATHS
-
2,973SQFT
-
$255$/SQFT
School Information
Description
Welcome to the rare opportunity to build a brand-new home on an almost 2-acre, wooded, level homesite in one of the area’s most highly sought-after locations. This thoughtfully designed residence offers 5 bedrooms and 4 baths with a spacious, open-concept floor plan created for both everyday living and effortless entertaining. The heart of the home features a gourmet kitchen complete with stainless steel appliances, generous workspace, and seamless flow into the main living areas. Generously sized secondary bedrooms provide comfort and flexibility for family, guests, or home offices. 10' ceilings in the Family Room, Dining Area, Foyer and Pantry. The private primary suite is a true retreat, showcasing a luxurious soaking tub and a separate walk-in shower for spa-like comfort. Step outside to the covered rear patio, ideal for relaxing, entertaining, or enjoying the peaceful wooded setting. A side-entry garage enhances curb appeal while maintaining the home’s clean, elegant lines. Surrounded by natural beauty and offering exceptional privacy, this new-construction home blends modern design, functional living, and a serene setting—an exceptional opportunity to own a custom-style home on a premium homesite.
Related Properties
Listings identified with the FMLS IDX logo come from FMLS, are held by brokerage firms other than the owner of this website and the listing brokerage is identified in any listing details. Information is deemed reliable but is not guaranteed.
If you believe any FMLS listing contains material that infringes your copyrighted work, please click here to review our DMCA policy and learn how to submit a takedown request.
© 2026 First Multiple Listing Service, Inc. Data last updated 2026-04-16T12:10:04.667. For issues regarding this website, please contact BoomTown.
